NAVIGATECLOSE

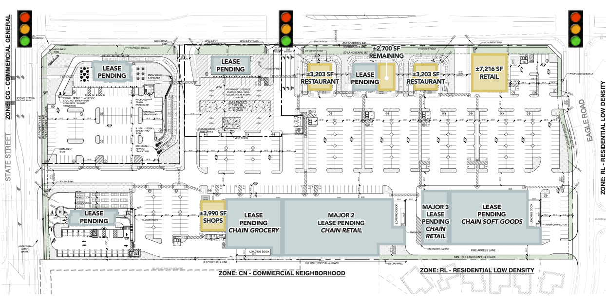
THE MAGNET, SAN JACINTO CA

SEC W RAMONA EXPRESSWAY & STATE ST SAN JACINTO CA 92583
110,000 sq. ft.
13 Retail Units
135,776 appx population
$84,824 Appx income
Contact Broker
  • This field is for validation purposes and should be left unchanged.
  • This field is hidden when viewing the form

Property highlights

  • NEW SHOPPING CENTER COMING SOON
  • ANCHOR, PAD & SHOP SPACE FOR LEASE
  • POSITIONED IN THE HEART OF THE SAN JACINTO/HEMET RETAIL CORRIDORDIRECTLY ACROSS FROM THE NEW VILLAGE AT SAN JACINTO SHOPPING CENTER ANCHORED BY STATER BROS, CARL’S JR AND MANY OTHERS
  • EXCELLENT DRAW CREATED BY THE NEWLY CONSTRUCTED SOBOBA CASINO
  • EXCELLENT ACCESS & UNPARALLELED EXPOSURE TO RAMONA EXPRESSWAY BOASTING OVER 37,000 CARS PER DAY
  • RESIDENTIAL ACTIVITY IN THE HEMET/SAN JACINTO TRADE AREA CONSISTS OF 39,461 UNITS IN DEVELOPMENT PROCESS (TOTALING A 59% INCREASE IN POPULATION UPON FULFILLMENT)
  • IDEAL OPPORTUNITY FOR RESTAURANTS, FAST FOOD, HOTEL, FITNESS CENTER, BANKS, DRUG STORES, CHILD CARE, PET SUPPLY, THEATER, FURNITURE

Broker info

BRIAN BIELATOWICZ
DRE# 01269887
951.445.4515

Broker